трубогиб 4 260 Жалоба Опубликовано: 2 сентября 2010 Восстанавливая свой Газик пришлось перерисовать и создать чертежи лодки ГАЗ 69. Конечно могут быть ошибки и неточности так как размеры снимались с гнилого кузова, однако это хоть что-то. Я уже обмолвился об этом в какой то теме и особенно внимательные одноклубники теперь обращаются. Возникла идея создать бесплатный архив чертежей. У меня листов 50-60 получилось, вывешивать буду постепенно. Если у кого есть чертежи или схемы и пр. прошу скидывать сюда. Р.S. Извиняюсь, на моих чертежах могут быть не правильные каталожные номера и названия деталей. Цитата Поделиться сообщением Ссылка на сообщение Поделиться на других сайтах
трубогиб 4 260 Жалоба Опубликовано: 2 сентября 2010 (изменено) Перенесено прим swat Изменено 5 сентября 2010 пользователем swat Цитата Поделиться сообщением Ссылка на сообщение Поделиться на других сайтах
трубогиб 4 260 Жалоба Опубликовано: 2 сентября 2010 (изменено) Пол кузова Лонжерон правый Усилитель поперечный кронштейна бака Усилитель пола поперечный Кронштейн хомута бака Захват бака Усилитель пола у заднего борта нижний Уголок пола задний правый Лонжерон средний Верхняя панель среднего лонжерона Изменено 2 сентября 2010 пользователем трубогиб 2 Цитата Поделиться сообщением Ссылка на сообщение Поделиться на других сайтах
трубогиб 4 260 Жалоба Опубликовано: 2 сентября 2010 Усилитель пола у заднего борта верхний Ухо заднего борта Уголок пола правый Панель угловая задняя правая Уголок задней угловой панели 1 Цитата Поделиться сообщением Ссылка на сообщение Поделиться на других сайтах
трубогиб 4 260 Жалоба Опубликовано: 2 сентября 2010 Уголок стойки заднего борта Цитата Поделиться сообщением Ссылка на сообщение Поделиться на других сайтах
трубогиб 4 260 Жалоба Опубликовано: 2 сентября 2010 Заглушка стойки заднего борта Средний правый полик Крыло заднее Накладка на борт Цитата Поделиться сообщением Ссылка на сообщение Поделиться на других сайтах
трубогиб 4 260 Жалоба Опубликовано: 2 сентября 2010 Задняя стойка двери Цитата Поделиться сообщением Ссылка на сообщение Поделиться на других сайтах
трубогиб 4 260 Жалоба Опубликовано: 3 сентября 2010 Порог двери внутренний Цитата Поделиться сообщением Ссылка на сообщение Поделиться на других сайтах
Артём39 2 582 Жалоба Опубликовано: 4 сентября 2010 У меня то же кое что есть, порыться нужно Болт-ось вращения рамки лобового стекла Цитата Поделиться сообщением Ссылка на сообщение Поделиться на других сайтах
Ваня джипер 3 Жалоба Опубликовано: 4 сентября 2010 Трубогиб у меня есть чертежи пружинной подвески на ГАЗ 69 и многое другое!!! Выкладывать???? Цитата Поделиться сообщением Ссылка на сообщение Поделиться на других сайтах
AlexEFF 4 Жалоба Опубликовано: 5 сентября 2010 Трубогиб у меня есть чертежи пружинной подвески на ГАЗ 69 и многое другое!!! Выкладывать???? ДААААА или скинь на почту,плиз v021ar@mail.ru 1 Цитата Поделиться сообщением Ссылка на сообщение Поделиться на других сайтах
Ваня джипер 3 Жалоба Опубликовано: 5 сентября 2010 Лучше пиши те что кому надо я буду высылать на мыло, посто инфы много а трафика мало!!!! Цитата Поделиться сообщением Ссылка на сообщение Поделиться на других сайтах
трубогиб 4 260 Жалоба Опубликовано: 6 сентября 2010 Не мужики, скидывайте в одно место чтобы общедоступно было. Я считаю что на это трафика жалеть не надо. Порог двери верхний. Цитата Поделиться сообщением Ссылка на сообщение Поделиться на других сайтах
Raider 55 Жалоба Опубликовано: 6 сентября 2010 Не мужики, скидывайте в одно место чтобы общедоступно было. Я считаю что на это трафика жалеть не надо. +Стопицот!!! Скрины чертежей можно постить прямо в тему,как это делает Трубогиб, а для моделей из CAD/CAM-систем место найдём - пишите в личку! Цитата Поделиться сообщением Ссылка на сообщение Поделиться на других сайтах
Ваня джипер 3 Жалоба Опубликовано: 6 сентября 2010 Понял !!! в скором времени выложу все что есть!!!!! Цитата Поделиться сообщением Ссылка на сообщение Поделиться на других сайтах
трубогиб 4 260 Жалоба Опубликовано: 7 сентября 2010 Балка правая отсека доп.бака Цитата Поделиться сообщением Ссылка на сообщение Поделиться на других сайтах
трубогиб 4 260 Жалоба Опубликовано: 8 сентября 2010 Заглушка задней стойки двери Цитата Поделиться сообщением Ссылка на сообщение Поделиться на других сайтах
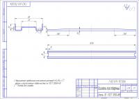
трубогиб 4 260 Жалоба Опубликовано: 9 сентября 2010 Пятак крепления поручня Цитата Поделиться сообщением Ссылка на сообщение Поделиться на других сайтах
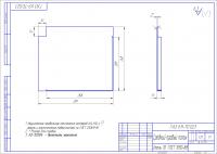
трубогиб 4 260 Жалоба Опубликовано: 10 сентября 2010 Поручень Ящик АКБ Цитата Поделиться сообщением Ссылка на сообщение Поделиться на других сайтах
трубогиб 4 260 Жалоба Опубликовано: 13 сентября 2010 Полик правый пасажирский. Цитата Поделиться сообщением Ссылка на сообщение Поделиться на других сайтах
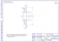
трубогиб 4 260 Жалоба Опубликовано: 14 сентября 2010 Заглушка заднего угла Цитата Поделиться сообщением Ссылка на сообщение Поделиться на других сайтах
трубогиб 4 260 Жалоба Опубликовано: 15 сентября 2010 Основание откоса передний стойки двери Откос передней стойки двери Цитата Поделиться сообщением Ссылка на сообщение Поделиться на других сайтах
трубогиб 4 260 Жалоба Опубликовано: 16 сентября 2010 Лонжерон левый Цитата Поделиться сообщением Ссылка на сообщение Поделиться на других сайтах
трубогиб 4 260 Жалоба Опубликовано: 22 сентября 2010 Уголок пола задний правый Цитата Поделиться сообщением Ссылка на сообщение Поделиться на других сайтах
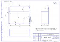
трубогиб 4 260 Жалоба Опубликовано: 23 сентября 2010 Кузов Цитата Поделиться сообщением Ссылка на сообщение Поделиться на других сайтах